1 kwietnia 2021 roku rozpoczęliśmy konsultacje społeczne poprzedzające sporządzenie projektu miejscowego planu zagospodarowania przestrzennego osiedla Bema-Sosnowa prowadzone jest w ramach projektu „Przestrzeń dla partycypacji 2”, współfinansowanego ze środków Europejskiego Funduszu Społecznego w ramach Działania 2.19 Programu Operacyjnego Wiedza Edukacja Rozwój 2014-2020. 4 marca 2021 roku z inicjatywy burmistrza Andrzej Katarzyńca podpisano umowę, dzięki której przeprowadzono kampanię informacyjną dotyczącą procesu planowania przestrzennego oraz przeprowadzono wielokierunkowe konsultacje społeczne.
Przystąpiliśmy do projektu “Przestrzeń dla partycypacji 2”, aby przede wszystkim przybliżyć mieszańcom Żagania zasady oraz procedury tworzenia ważnego dla gminy dokumentu, jakim jest każdy plan miejscowy. W tym celu przygotowaliśmy specjalną prezentację, która wyjaśniała, czym jest ten dokument, do czego służy i w jakim celu jest opracowywany – link do prezentacji. Należy pamiętać, że miejscowy plan zagospodarowania przestrzennego to ważny dokument, który mówi o tym, jak wygląda teraz i jak będzie się kształtowało w kolejnych latach nasze otoczenie. Dlatego tak istotny jest udział mieszkańców w procesie jego tworzenia. Zasady te przybliżyliśmy mieszkańcom Żagania również poprzez wydruk specjalnej broszury.
Konsultacje społeczne rozpoczęliśmy 1 kwietnia 2021 roku, uruchamiając ankietę dostępną w kilku wersjach – na stronie google, za pośrednictwem aplikacji TransparentneJST (do pobrania ze Sklepu Google Play na urządzeniach mobilnych), poprzez stronę https://zagan.konsultacjejst.pl/konsultacje-spoleczne oraz z wykorzystaniem formularza ankiety, dostępnego na naszej stronie bip jednostki. Do udziału w konsultacjach zaprosiliśmy mieszkańców również na antenie Radia Zachód – materiał. Na uwagi mieszkańców czekaliśmy do końca maja. W konsultacjach społecznych przeprowadzonych ramach odpowiedzi zwrotnej otrzymaliśmy 12 ankiet w formie papierowej, 86 w formie elektronicznej.
Dodatkowo uruchomiliśmy trzy punkty konsultacyjne, gdzie dostępne były ankiety oraz wielkoformatowe mapy terenu, na których można było naklejać elementy architektury, którą mieszkańcy chcieliby znaleźć na planowanym do zagospodarowania terenie. Równocześnie na terenie miasta oraz w miejskich budynkach (m.in. w szkołach i przedszkolach) pojawiły się plakaty informujące o konsultacjach społecznych oraz punktach konsultacyjnych. Do każdej ze szkół trafiły również wielkie mapy terenu, aby uczniowie mogli zobaczyć obszar objęty planowaniem.
Czego dowiedzieliśmy się z ankiet wypełnionych przez mieszkańców?
Analiza wszystkich ankiet (łącznie 98) wskazuje, że najczęściej wypowiadały się osoby prywatne w przedziale 25-45 lat (około 70% ankietowanych), najmniej osób powyżej 65 roku życia (około 5% uczestników konsultacji) w niewielkiej przewadze kobiet (proporcje 55% do 45%). W ramach konsultacji wypowiedzieli się przedstawiciele biznesu i instytucji, dzięki czemu pozyskano opinię od każdej z grup docelowych. Szczegółową analizę oczekiwań/odpowiedzi znajdą Państwo w specjalnie opracowanym Raporcie. Powstały również dwa raporty cząstkowe w oparciu o każdą z platform, na której opublikowana była nasza ankieta – ankieta google i ankieta na stronie www.zagan.konsultacje. jst
Konkurs “Zaprojektuj swoje podwórko” i lekcje zdalne w szkołach
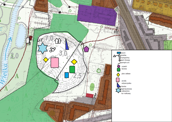
Następną grupą, którą zapytaliśmy o opinię w sprawie zagospodarowania przestrzeni dzielnicy Bema, stanowili najmłodsi mieszkańcy Żagania. Dzieci i młodzież zapytaliśmy o to, jak chcieliby urządzić swoją najbliższą okolicę. Przepiękne prace i projekty przestrzenne pokazały, że najważniejsze pozostają dla dzieci elementy rekreacyjne w okolicy. Pojawiły się w pracach zarówno place zabaw, jak i parki linowe, małe zoo. Na wszystkich pracach dominowały tereny zielone stworzone do aktywnego wypoczynku. Podobne projekty złożyli uczniowie klas siódmych szkoły zlokalizowanej w dzielnicy objętej planem. Najpierw zaprosiliśmy młodzież do udziału w lekcjach poświęconych istocie planowania przestrzennego. Oto przykładowe prace zgłoszone w ramach konkursu na komputerową aranżację przestrzeni osiedla Bema-Sosnowa:
Konkurs Burmistrza Miasta Żagań “Zaprojektuj swoje podwórko ogłoszono w ramach projektu “Przestrzeń dla partycypacji”. Poproszono najmłodszych (przedszkolaki ze wszystkich przedszkoli w mieście) o plastyczne przedstawienie najważniejszych w ich opinii elementów zagospodarowania okolicy. Dzieci namalowały podwórka swoich marzeń, najczęściej wskazując, że ważne są dla nich strefy aktywności, place zabaw, parki rozrywki.
W piątek 14 maja 2021 roku spotkała się komisja konkursowa, aby ocenić prace zgłoszone w konkursie dla przedszkolaków “Zaprojektuj swoje podwórko”. Wpłynęło 11 obrazków w kategorii dzieci 3 i 4-letnich oraz 48 rysunków w kategorii wiekowej od 4 do 7 lat. Dodatkowo dziewięcioro dzieci zbudowało przestrzenne projekty podwórek, co Organizator Konkursu postanowił nagrodzić wyróżnieniem. Doceniając ogromny wysiłek, jaki widać w tych pracach i staranność wykonania oraz oryginalność, jaką dostrzegam w przestrzennych projektach, postanowiłem przyznać specjalne wyróżnienia autorom tych prac – podsumował burmistrz Andrzej Katarzyniec.
Prace wyeksponowano w czerwcu w pałacyku Żagańskiego Pałacu Książęcego, gdzie przez miesiąc prezentowane były w formie wystawy.
W dniu wręczenia nagród, w trakcie pikniku miejskiego z okazji Dnia Dziecka, zaprosiliśmy mieszkańców do plenerowego punktu konsultacyjnego na terenie podzamcza Pałacu Książęcego. Na specjalnie przygotowanym stoisku pracownicy wydziału merytorycznego magistratu rozmawiali z mieszkańcami Żagania o ich potrzebach w zakresie zagospodarowania przestrzeni w mieście, pomagali w wypełnieniu ankiet, rozdawali specjalnie przygotowane materiały dotyczące procesu planowania, zachęcali do aranżacji przestrzeni osiedla Bema-Sosnowa poprzez oznaczanie na wielkoformatowej mapie terenu miejsc potrzebnych, rozwiązań istotnych dla mieszkańców.
Kończąc konsultacje społeczne w sprawie przystąpienia do sporządzenia projektu miejscowego planu zagospodarowania przestrzennego osiedla Bema-Sosnowa w Żaganiu dziękujemy za Państwa aktywność oraz przekazane opinie, pomysły i rozwiązania. Wszystkie one w formie raportu przekazane zostały projektantowi, który opracuje strategiczny dokument.



Projekt „Przestrzeń dla partycypacji 2” jest współfinansowany ze środków Europejskiego Funduszu Społecznego w ramach Działania 2.19 Programu Operacyjnego Wiedza Edukacja Rozwój 2014-2020





