Informujemy, że Urząd Miasta w Żaganiu przygotował do sprzedaży działki pod zabudowę jednorodzinną w Żaganiu. W ofercie znalazło się osiemnaście nieruchomości przeznaczonych do sprzedaży w drodze przetargowej w rejonie ulic Pogodna i Kazimierza Wielkiego w Żaganiu.
Dodatkowe informacje można uzyskać pod numerem telefonu 477 10 42 lub w pokoju nr 7 w godzinach pracy Urzędu Miasta. Przetargi na powyższe działki odbędą się 8 i 9 grudnia 2015 roku.
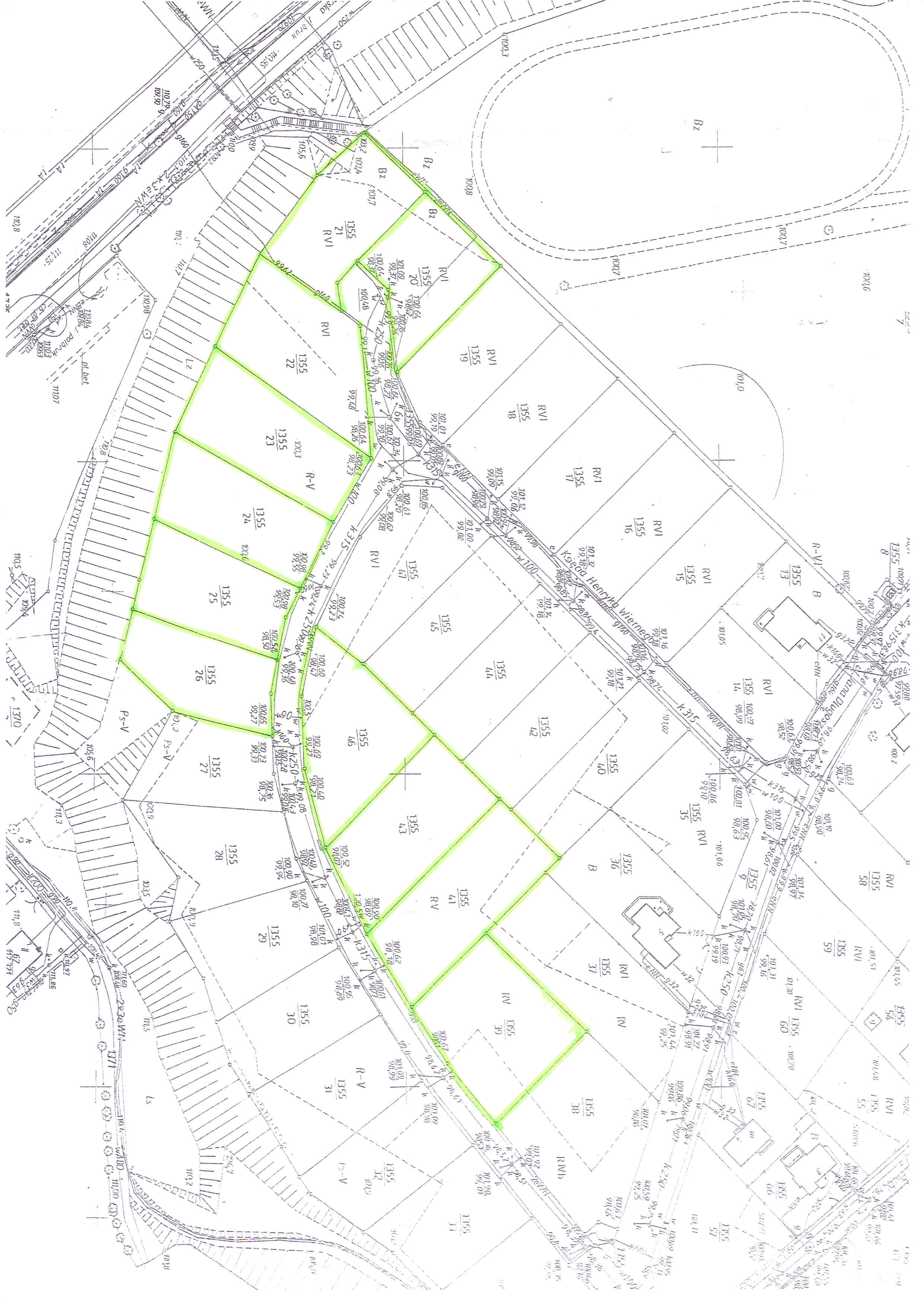
Do sprzedaży wyznaczono działki:
- przy ulicy Pogodnej: 3117/6, 3117/7, 3177/8, 3177/14, 2758/18, 2758/2, 2758/6, 2758/10,
- przy Kazimierza Wielkiego: 1355/20, 1355/21, 1355/22, 1355/23, 1355/24, 1355/25, 1355/26, 1355/39, 1355/41, 1355/43, 1355/46.
Mapy zawierające powyższe działki zamieszczamy poniżej:
Ulica pogodna mapa
Osiedle cyrkowe mapa





